EMPRESA
****NOVETATS****
MANAGEMENT
INTERNATIONAL
RELACIÓ DE SERVEIS
EQUIPAMENTS
MASIES-TURIS. RURAL
RES. PLURIFAMILIAR
Móra d'Ebre
Vic 1
Roda de Ter
Sta. Eulàlia Riuprimer
Badalona
Taradell
Vic 2
Barcelona
La Bisbal d'Empordà 1
Balenyà
Palamós 1
La Bisbal d'Empordà 2
Montequiu 1
Montesquiu 2
St.Hipòlit Voltregà
Palamós 2
St. Quirze de Besora
Gurb
Barcelona 2
La Bisbal d'Empordà 3
Sant Julià Vilatorta
Centelles
St. Hipòlit Voltregà 2
RES. EN FILERA
RES. UNIFAMILIAR
INDUSTRIAL
URBANISME
COL.LABORACIONS
PUBLICACIONS / R+D+I
LINKS D'INTERÈS
CONTACTE
CONSULTES
ADVERTIMENT LEGAL
 












_CAT

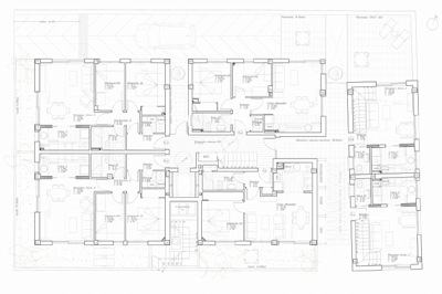
Superfície construïda: 997,40 m2
Data projecte: 2009 - actualitat
Localitat: Gurb (Barcelona)
Estat: En fase de projecte.
Descripció projecte: El projecte desenvolupa 10 vivendes en un edifici amb una imatge serena i delicada de caràcter marcadament horitzontal. El projecte neix d’una planta compacta que a mesura es va desenvolupant esclata independitzant les vivendes entre si tot permetent unes condicions d’il·luminació i ventilació òptimes. Així mateix, degut a les condicions de l’entorn, dues vivendes s’independitzen totalment de les altres 8 funcionant en tipologia dúplex i lleugerament girades respecte la geometria del conjunt, adaptant-se a la directriu del carrer on donen front.

Degut a la dràstica decisió de tallar les vivendes i separar-les, fent-les gairebé autònomes entre elles, s’aconsegueix que aquestes tinguin un marcat caràcter residencial en contacte amb l’espai exterior. Espais semi-exteriors, terrasses, porxos i pèrgoles són elements que es fan evidents en l’aspecte exterior de la construcció i que pretenen donar una alta qualitat de vida als futurs residents de l’edifici, així com una alta eficiència energètica al conjunt edificat.

_ESP

Superficie construida: 997,40 m2
Fecha proyecto: 2009 - actualidad
Localidad: Gurb (Barcelona)
Estado: En fase de proyecto.
Descripción proyecto:
El proyecto desarrolla 10 viviendas en un edificio con una imagen serena y delicada de carácter marcadamente horizontal. El proyecto nace de una planta compacta que a medida se va desarrollando estalla independizando las viviendas entre sí permitiendo unas condiciones de iluminación y ventilación óptimas. Asimismo, debido a las condiciones del entorno, dos viviendas se independizan totalmente de las otras 8 funcionando en tipología dúplex y ligeramente giradas respecto a la geometría del conjunto, adaptándose a la directriz de la calle donde dan frente.

Debido a la drástica decisión de cortar las viviendas y separarlas, haciéndolas casi autónomas entre ellas, se consigue que éstas tengan un marcado carácter residencial en contacto con el espacio exterior. Espacios semi-exteriores, terrazas, porches y pérgolas son elementos que se hacen evidentes en el aspecto exterior de la construcción y que pretenden dar una alta calidad de vida a los futuros residentes del edificio, así como una alta eficiencia energética en el conjunto edificado.

Top