EMPRESA
****NOVETATS****
MANAGEMENT
INTERNATIONAL
RELACIÓ DE SERVEIS
EQUIPAMENTS
MASIES-TURIS. RURAL
RES. PLURIFAMILIAR
RES. EN FILERA
RES. UNIFAMILIAR
Tona 1
Seva
Taradell 1
Vic 1
Cantonigròs
Vic 2
Tona 2
Gurb
Palamós
Tona 3
Muntanyola
Vic 3
St.Julià Vilatorta 1
St.Julià de Vilatorta 2
Espinelves
Taradell 2
Rehabilitació Olost
INDUSTRIAL
URBANISME
COL.LABORACIONS
PUBLICACIONS / R+D+I
LINKS D'INTERÈS
CONTACTE
CONSULTES
ADVERTIMENT LEGAL
 











_CAT

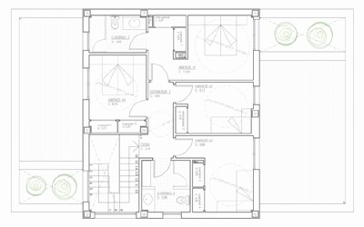
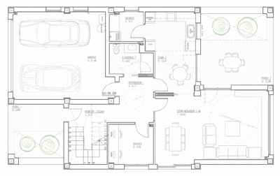
Superfície construïda: 214,64 m2
Data projecte: 2010-actualitat
Localitat: Gurb (Barcelona)
Estat: En fase de projecte
Descripció projecte:
- El projecte pretén construir un habitatge compacte per tal de reduir la superfície empleada a espais de circulació. Es busca, per tant, aconseguir el màxim de dependències amb el mínim de superfície construïda empleada.

- La imatge exterior, serena i de màxima simplicitat formal, modelitza la macla geomètrica entre el volum d'obra vista blanca i el de coloració fosca. La vegetació del jardí juga un paper clau a l'entrar a formar part del propi volum edificat punxant els elements porxats i atravessant-los.

_ESP

Superficie construida: 214,64 m2
Fecha proyecto: 2010-actualidad
Localidad: Gurb (Barcelona)
Estado: En fase de proyecto
Descripción proyecto:
- El proyecto pretende construir una vivienda compacta para reducir la superficie empleada en espacios de circulación. Se busca, por tanto, conseguir el máximo de dependencias con el mínimo de superficie construida empleada.

- La imagen exterior, serena y de máxima simplicidad formal, modeliza la macla geométrica entre el volumen de obra vista blanca y el de coloración oscura. La vegetación del jardín juega un papel clave al entrar a formar parte del propio volumen edificado pinchando los porches y atravesándolos.

Top